THE BREWERY LOFTS | The Enterprise Companies

THE BREWERY LOFTS

1301 W Fletcher Street

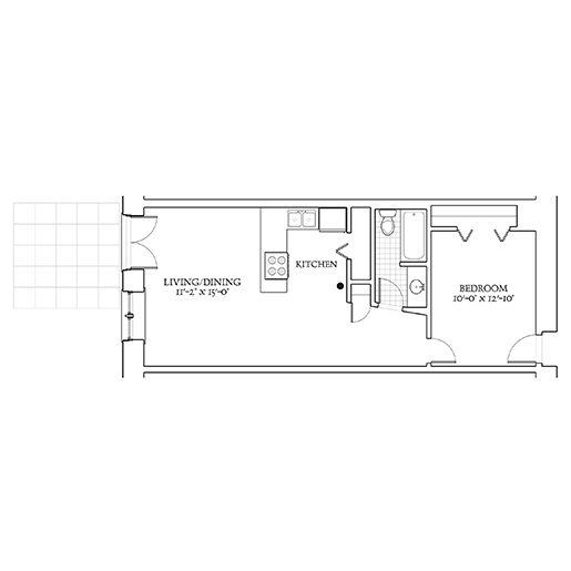
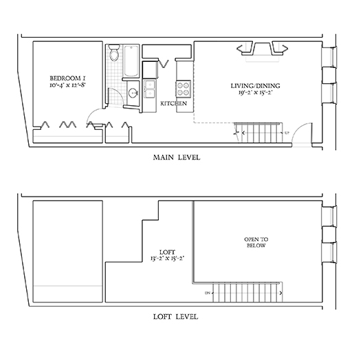
Lakeview’s most popular loft community is the conversion of this 1888 building that is listed on the National Register of Historic Places. This redevelopment of the former Best Brewing Company created 77 unique, award-winning loft apartments from a 9-building site. Studio, 1 and 2 bedroom residences are featured and each unit comprises a special one-of-a-kind design with lots of character and exposed brick. Many of the units have tall, wood-beamed ceilings. All of the units were recently rehabbed with sleek new kitchens and bathrooms. Building amenities include a great exercise room and laundry facility and two roof decks featuring sunning and lounging furniture, eating tables, and oversized grills. Indoor and outdoor parking is available for an additional cost. The building is close to the Belmont El stop and all the great shops and restaurants along the Southport corridor. See below!

We will only do in-person showings once you have filled out an application at www.edcrents.com and are approved!

Contact us

FOR MORE INFO REGARDING ANY OF OUR PROPERTIES

Contact us

Book Now

Book an appointment with The Enterprise Companies

Book Now
Powered by AppointmentPlus